kihua logo sinfonia logo
  | | |  
 

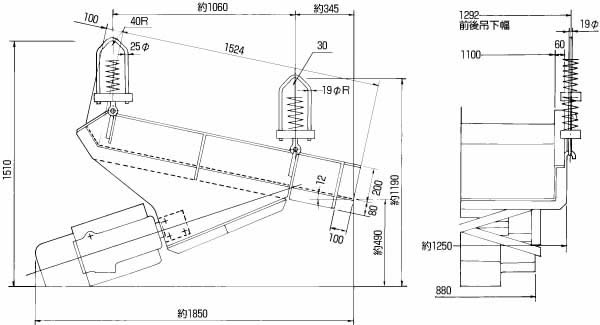
RFH-85B 橡胶弹簧式下部驱动吊下形


关闭窗口

 
上海起华机械有限公司 Shanghai KIHUA Machinery Co., Ltd.@版权所有
|
首页 |品牌列表 |关于我们 |联系我们 |