kihua logo sinfonia logo
  | | |  
 
 
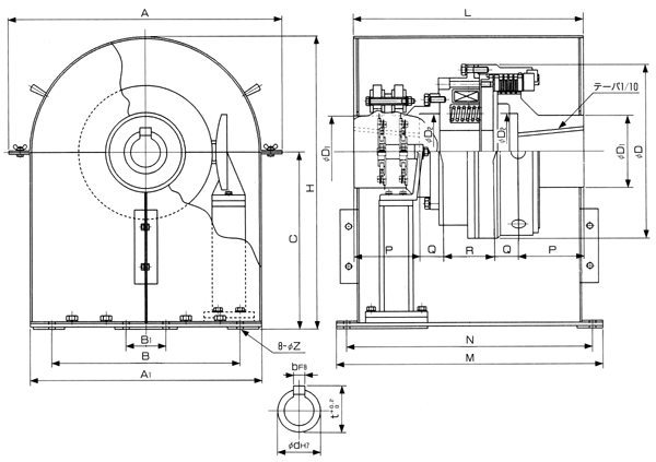
大规格电磁离合/shinko_sinfonia_神钢电机制动器<SE-75>

 

形 式

SE-75
定格トルク   Nm 1250

定格電圧    DC-V

36
消費電力   W(at75℃) 42

質量             kg

49

受注生産品

単位 : mm



A 466
A1 406
B 330
B1 70
C 254
H 457


L 360
M 424
N 388
Z 11

φD 239
φD1 102
φD2 102
P 100
Q 31.6
R 96.8

d 55
b 15
t 60

关闭窗口

 
上海起华机械有限公司 Shanghai KIHUA Machinery Co., Ltd.@版权所有
|
首页 |品牌列表 |关于我们 |联系我们 |