kihua logo sinfonia logo
  | | |  
 
 

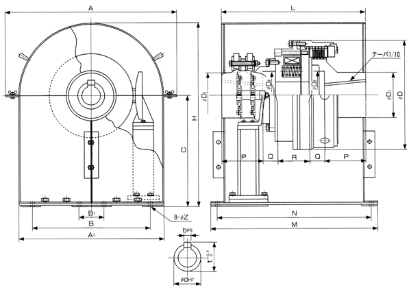
大规格电磁离合/shinko_sinfonia_神钢电机制动器<SE-180>

 

形 式

SE-180
定格トルク   Nm 16600

定格電圧    DC-V

36
消費電力   W(at75℃) 74

質量             kg

365

単位 : mm



A 716
A1 610
B 530
B1 100
C 450
H 768


L 546
M 610
N 574
Z 13

φD 540
φD1 178
φD2 191
P 150
Q 37.3
R 171.4

d 130
b 35
t 141

 

 

 

 

 

 

 

 

 

 

 




 
上海起华机械有限公司 Shanghai KIHUA Machinery Co., Ltd.@版权所有
|
首页 |品牌列表 |关于我们 |联系我们 |