kihua logo sinfonia logo
  | | |  
 
 

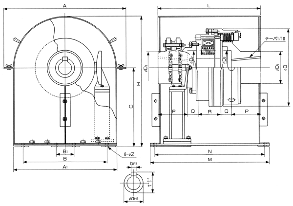
大规格电磁离合/shinko_sinfonia_神钢电机制动器<SE-155>

 

形 式

SE-155
定格トルク   Nm 10400

定格電圧    DC-V

36
消費電力   W(at75℃) 66

質量             kg

249

単位 : mm



A 614
A1 534
B 440
B1 90
C 406
H 673


L 524
M 587
N 551
Z 13

φD 477
φD1 165
φD2 178
P 140
Q 45.8
R 152.4

d 110
b 28
t 119

 

关闭窗口

 
上海起华机械有限公司 Shanghai KIHUA Machinery Co., Ltd.@版权所有
|
首页 |品牌列表 |关于我们 |联系我们 |