kihua logo sinfonia logo
  | | |  
 
 

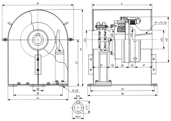
大规格电磁离合/shinko_sinfonia_神钢电机制动器<SE-115>

 

形 式

SE-115
定格トルク   Nm 4150

定格電圧    DC-V

36
消費電力   W(at75℃) 54

質量             kg

114

単位 : mm



A 540
A1 458
B 378
B1 80
C 339
H 568


L 451
M 514
N 480
Z 13

φD 351
φD1 146
φD2 143
P 125
Q 41.7
R 117.6

d 85
b 24
t 93

 

关闭窗口

 
上海起华机械有限公司 Shanghai KIHUA Machinery Co., Ltd.@版权所有
|
首页 |品牌列表 |关于我们 |联系我们 |