kihua logo sinfonia logo
  | | |  
 
 
臂状刹车型电磁离合/shinko_sinfonia_神钢电机制动器
<AR-500>

 

形式

AR-500
静摩擦トルク Nm
70
定格電圧     DC-V
24
消費電力    W(at75℃)
23
質量            kg
5.5

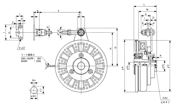
单位 : mm



A 128.6
A1 29
A2 44.6
C 136
E 26
G 100
H 85


L 81.4
M 52
O 9.1
Q 44.4
R 37

K 4.8
KJ M5

d 28
b 7
t 31
a 241
e 24
f 4.5
i 10
j 28
k 9
l 64
m 46
q 30.5
r 8.6
z 10
y 12.5


DMP-63/24A






TMP-40D

EMP-70DB

CSM-55DB

CMPH-250/4HB

关闭窗口

 
上海起华机械有限公司 Shanghai KIHUA Machinery Co., Ltd.@版权所有
|
首页 |品牌列表 |关于我们 |联系我们 |